-
Wohnhaus mit Büro in Pocking, 2000, Leistungsphasen 1-9
-
Gewächshaus in einem Münchner Innenhof, 2023, Workshop u. a. Tizian Wojan
-
Gewächshaus in einem Münchner Innenhof, 2023, Workshop u. a. Tizian Wojan
-
Mehrgenerationenhaus in Pocking, 2021, Leistungsphasen 1-8 u. Brandschutz
-
Mehrgenerationenhaus in Pocking, Detail Stahlbalkon, 2021, Leistungsphasen 1-8 u. Brandschutz
-
Mehrgenerationenhaus in Pocking, Innenausbau, 2022, Leistungsphasen 1-8 u. Brandschutz
-
Grundschule in Gunzenhausen, Konzept, 2000, Wettbewerb
-
Grundschule in Gunzenhausen, Grundrisse, 2000, Wettbewerb
-
Einfamilienhaus in Pocking, Baustelle, 2024, Leistungsphasen 1-9
-
Einfamilienhaus in Pocking, Detail Oberlicht, 2024, Leistungsphasen 1-9
-
Einfamilienhaus in Pocking, Vogelperspektive, 2025, Leistungsphasen 1-9
-
Einfamilienhaus in Pocking, 2025, Leistungsphasen 1-9
-
Einfamilienhaus in Pocking, 2025, Leistungsphasen 1-9
-
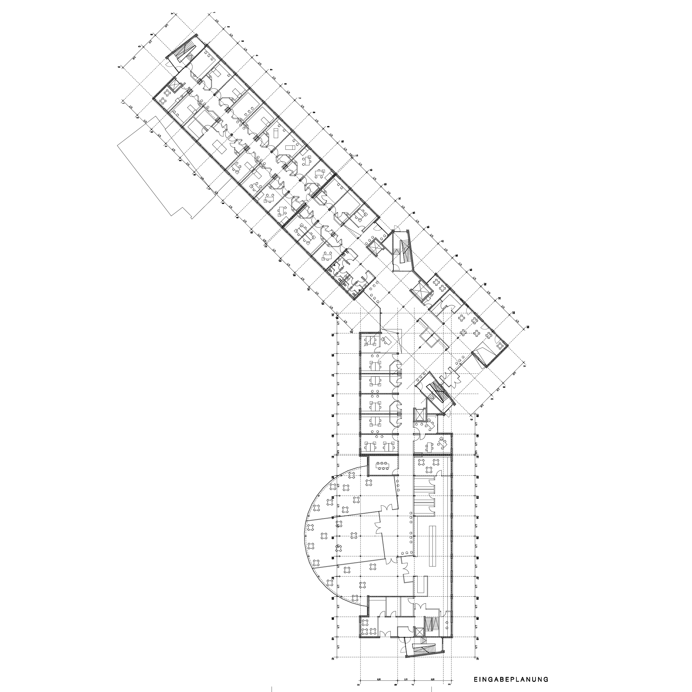
Rehaklinik in Zinnowitz, Grundriss, 1998, Leistungsphasen 1-6 u. Brandschutz
-
Einfamilienhaus in Hohenbrunn, 2012, Leistungsphasen 1-9
-
Einfamilienhaus in Hohenbrunn, Detail Eckfenster, 2012, Leistungsphasen 1-9
-
Einfamilienhaus in Hohenbrunn, Innenraum, 2012, Leistungsphasen 1-9
-
Wohnhaus mit Atelier in Simbach, Scheunenfund, 2023, Leistungsphasen 1-9
-
Wohnhaus mit Atelier in Simbach, Rückbau und Ersatzbau, 2025, Leistungsphasen 1-9
-
Wohnhaus mit Atelier in Simbach, Rückbau und Ersatzbau, 2025, Leistungsphasen 1-9
-
Wohnhaus mit Atelier in Simbach, Visualisierung, 2023, Leistungsphasen 1-9
-
Wohnhaus mit Atelier in Simbach, Rückbau und Abriss, 2024, Leistungsphasen 1-9
-
Wohnhaus mit Atelier in Simbach, Ersatzbau, 2025, Leistungsphasen 1-9
-
Wohnhaus mit Atelier in Simbach, Detail Ersatzbau, 2025, Leistungsphasen 1-9
-
Wohnhaus mit Atelier in Simbach, Innenausbau durch Bauherr, 2025, Leistungsphasen 1-9
-
Eine Bank aus Spraydosen, 2024, Studierendenprojekt u. a. Tizian Wojan
-
Eine Bank aus Spraydosen, 2024, Studierendenprojekt u. a. Tizian Wojan
-
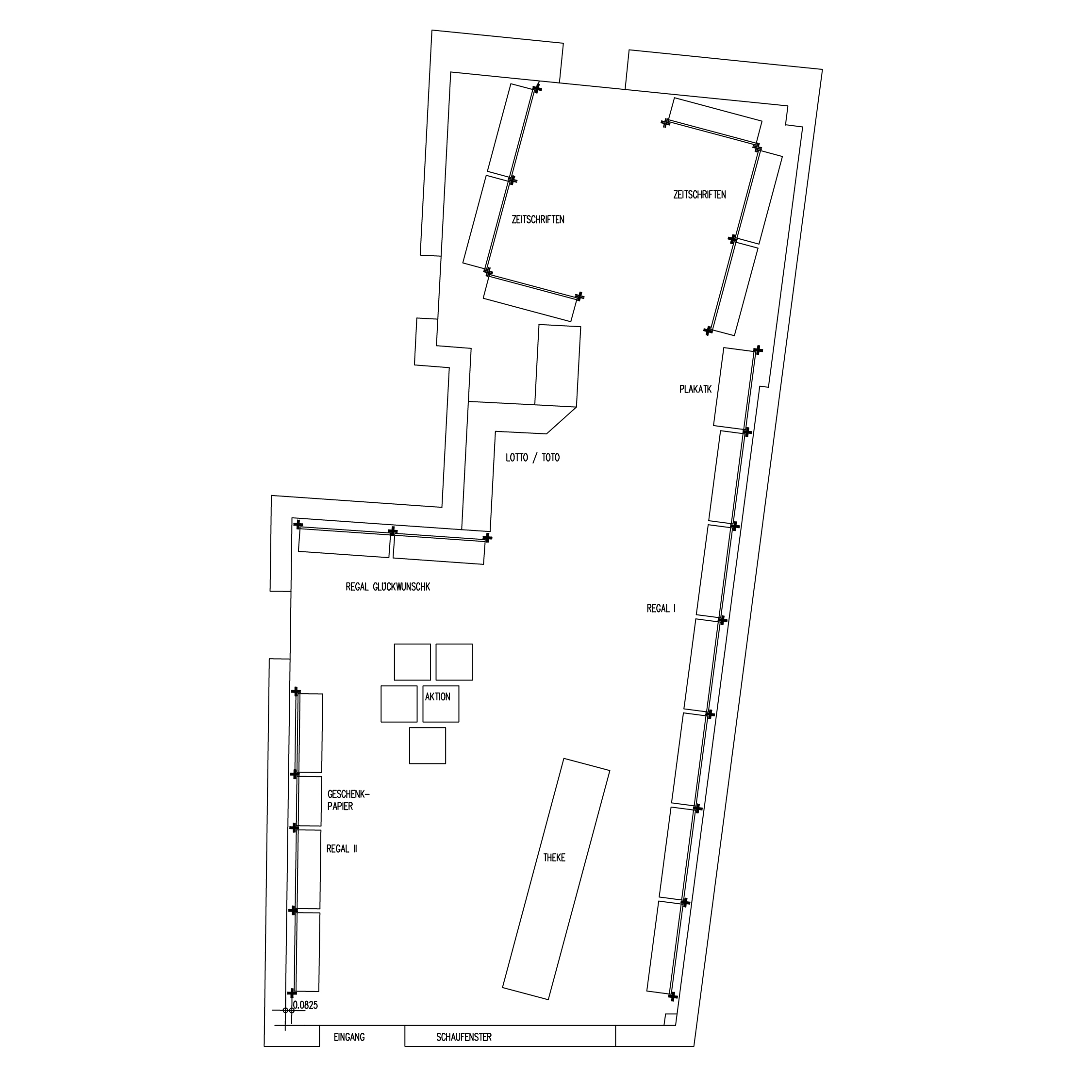
Papier- und Zeitschriftenladen in Waldkirchen, Grundriss, 1998, Leistungsphasen 1-8 Innenarchitektur
-
Papier- und Zeitschriftenladen in Waldkirchen, Detail Theke, 1998, Leistungsphasen 1-8 Innenarchitektur
-
Wohnbau aus wiederverwendeten Bauteilen, Visualisierung, 2023, Studierendenprojekt Tizian Wojan
-
Wohnbau aus wiederverwendeten Bauteilen, Grundriss und Detail, 2023, Studierendenprojekt Tizian Wojan
-
Wohnbau aus wiederverwendeten Bauteilen, Visualisierung, 2023, Studierendenprojekt Tizian Wojan